Casa indipendente in vendita

Cabras, Via del Bouganville - Funtana Meiga
€ 310.000
Prezzo aggiornato
2 locali 2 locali
128 Mq 128 Mq
2 bagni 2 bagni

Casa indipendente in vendita

Cabras, Via del Bouganville - Funtana Meiga

Descrizione annuncio

FUNTANAMEIGA - VIA DEL BOUGANVILLE

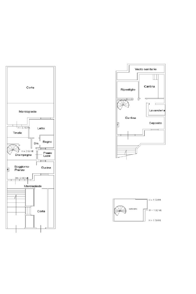
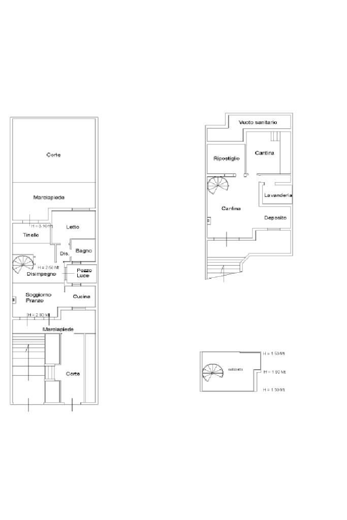
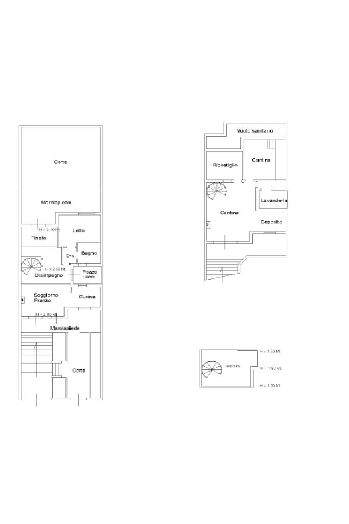
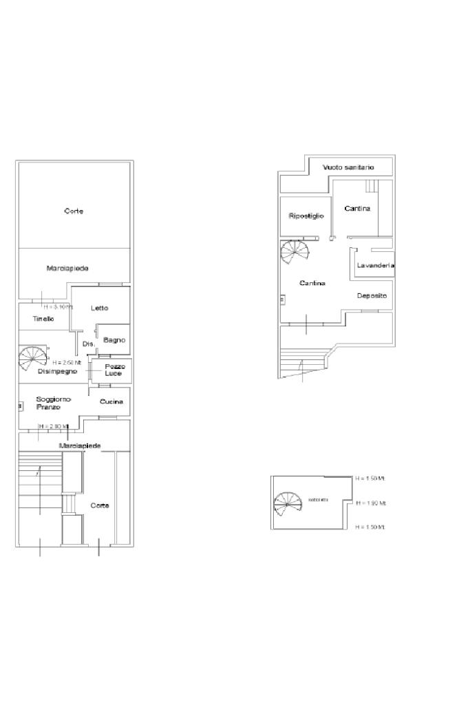
Nella suggestiva Marina di Cabras, a pochi km dal Paese e dalle altre spiagge, proponiamo in vendita una casa indipendente di 128 mq, ideale per chi cerca una residenza al mare. Costruita nel 2001, questa abitazione si sviluppa su più livelli, offrendo spazi ben distribuiti e funzionali. La casa comprende una zona giorno openspace, camera da letto matrimoniale e bagno, perfetti per chi desidera ampi spazi abitativi. Ogni piano presenta sia un ingresso autonomo che una struttura speculare e questo garantisce la possibilità di poterne usufruire anche come singole soluzioni indipendenti. Uno dei punti di forza è il cortile posteriore, dotato di una zona da adibire a zona barbeque che ci offre un angolo riservato dove poter trascorrere momenti di relax all'aperto. La posizione è strategica: a pochi minuti dalla spiaggia, permette di godere appieno delle bellezze naturali della zona e della tipica tranquillità e quiete che contraddistingue le zone di mare. Questa proprietà rappresenta un'opportunità unica per chi desidera vivere in un contesto sereno, senza rinunciare alla vicinanza del mare ma anche per chi desidera fare un investimento come casa vacanze o struttura ricettiva.

Mostra tutto

Nelle vicinanze

Negozi Negozi
Market Zafferano D'Itria
90 m
Ristoranti Ristoranti
Agriturismo Capo San Marco
710 m
Agriturismo Sannoranna
1,2 Km
Ristoranti
1,4 Km
Tharra
1,9 Km
Vento Maestro
1,9 Km
Mostra tutto

Caratteristiche

Rif.:
61166705
Piano:
Su più livelli di 2
Totale piani:
2
Camere da letto:
2
Arredamento:
Assente
Condizionamento:
Autonomo
Mostra tutto
Prezzo Prezzo
€ 310.000
Rata mutuo Rata mutuo
€ 1.473 / mese
Spese annue Spese annue
€ 0
Proponi il tuo prezzoProponi il tuo prezzo

Classe Energetica

G
G
G
G
G
G
G
G
G
EP globale non rinnovabile:
180.41 kW h/m² anno
EP globale rinnovabile:
42.16 kW h/m² anno
EP invernale del fabbricato:
EP estiva del fabbricato:
Anno di costruzione:
2001
Riscaldamento:
Assente

Prezzo ridotto di €1 (7%%)

Ti interessa visionare l'immobile?

Fissa un appuntamento  Fissa un appuntamento

Richiedi informazioni

Clicca su Leggi per aprire l'informativa
* Questi campi sono obbligatori

Calcola il tuo mutuo

Semplice e senza impegno
Anticipo

( % )
Mutuo

( % )

pochi semplici passi

inserisci i tuoi dati
Questionario completato
Grazie per aver richiesto un appuntamento senza impegno con un nostro Consulente del Credito e Assicurativo.

Hai inserito correttamente tutti i dati necessari e a breve riceverai una e-mail con un link da convalidare per inviare i tuoi dati.
Affiliato
Immobiliare Mariano IV Srl
Via Tharros, 35 09170 Oristano (OR)

Il nostro staff


  • Giuseppino Bernardi
    Affiliato

  • Marco Congiu
    Responsabile

  • Marika Falconi
    Collaboratrice

  • Gessica Marcias
    Coordinatrice

  • Gian Luigi Trudu
    Affiliato
Via Tharros, 35 09170 Oristano (OR)
Zona: Centro Storico-Città Giardino-San Nicola-Cabras
Mostra su mappa
Orari: Dal Lunedì al Venerdì: mattina ore 09.00 13.00; pomeriggio ore 14:30 alle ore 18:30; Sabato mattina ore 09.00 13.00 , pomeriggio chiuso. Domenica chiuso
Affiliato
Immobiliare Mariano IV Srl
Via Tharros, 35 09170 Oristano (OR)

2026 Tecnocasa Franchising S.p.A. - P. IVA 08365160152 - Via Monte Bianco 60/A 20089 Rozzano (MI). Ogni agenzia ha un proprio titolare ed è autonoma. Privacy policy | Policy utilizzo | Cookie policy